Opis nekretnine

PRVI RED DO MORA – LUKSUZNI STAN S PRIVATNIM VRTOM I INFINITY BAZENOM


Na jednoj od najekskluzivnijih lokacija u Zadru, u mirnoj uvali uz more, smještena je moderna zgrada s ukupno šest luksuznih stanova. Projektirana s fokusom na privatnost, udobnost i vrhunsku kvalitetu, zgrada se nalazi uz more, s neometanim pogledom, direktnim pristupom plaži i u blizini svih sadržaja potrebnih za kvalitetan život ili luksuzni odmor.

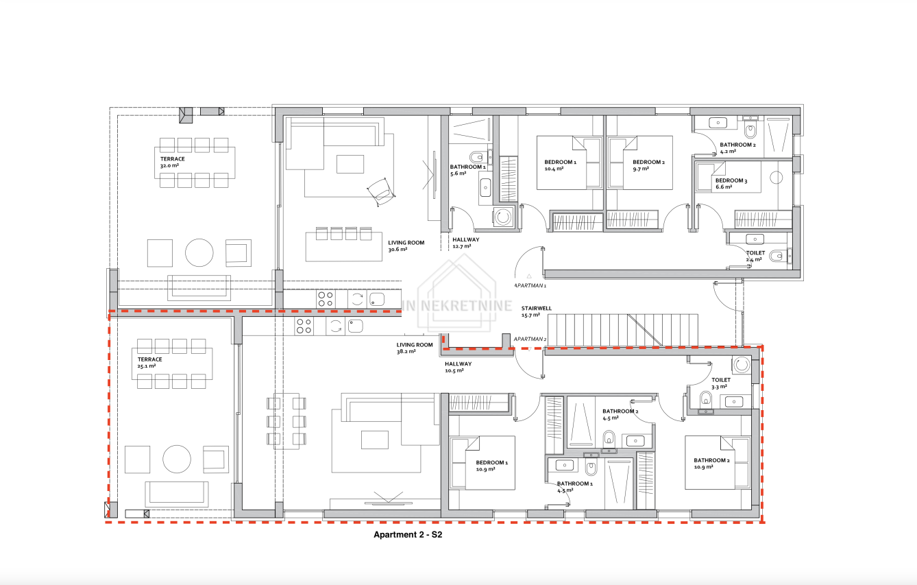
Stan se nalazi u prizemlju zgrade i prostire se na ukupno obračunskih 166,85 m².

Tlocrt:

Sastoji se od prostrane kuhinje s blagovaonicom i dnevnim boravkom, dvije spavaće sobe svaka s vlastitom kupaonicom, odvojenog WC-a i hodnika. Iz dnevnog boravka se izlazi na natkrivenu lođu koja vodi u veliki privatni vrt s infinity bazenom, ljetnom kuhinjom i vanjskim tušem – savršeno za uživanje tijekom toplih mediteranskih dana.

Uz stan pripada i spremište u podrumu, dva garažna parkirna mjesta (13,75 mi 19,25 m2) u podzemnoj garaži, kao i strojarnica.

 

Oprema i tehničke karakteristike:

  • Infinity bazen 17,10 m², vanjski tuš i ljetna kuhinja

  • Veliki privatni vrt (229 m² ukupno) s hodnim površinama i zelenilom

  • Lift s izravnim pristupom iz podzemne garaže

  • Punionica za električna vozila

  • Visina stropova: 280 cm

Vrata i stolarija:

  • Ulazna vrata Kolnoa – protuprovalna, vatrootporna, s unosom šifre, čitačem otiska prsta i klasičnim ključem

  • Unutarnja vrata od poda do stropa, bez dovratnika, zvučno i toplinski izolirana

  • Dodatna Termo-tech zvučna izolacija između etaža

  • Električne rolete i električni venecijaneri u sobama

  • Komarnici na svim prozorima i balkonskim vratima

Podovi:

  • 3-slojni hrastov parket u spavaćim sobama

  • Keramičke pločice velikog formata (300×120 cm) – talijanski Laminam u ostalim prostorijama

Grijanje i hlađenje:

  • Podno grijanje putem Mitsubishi dizalica topline

  • Mitsubishi klima uređaji u svakoj sobi

  • Wi-Fi povezani sustavi za grijanje i hlađenje – daljinsko upravljanje

Sanitarna oprema:

  • Tuš kabine u svim kupaonicama

  • Grohe Essence linija – slavine i tuševi

  • Villeroy & Boch umivaonici i WC školjke s integriranim sustavom pranja

 


Za više informacija i dogovor o razgledavanju, slobodno nas kontaktirajte.

  • Šifra objekta A603
  • Tip Apartman na moru
  • Mjesto Zadar
  • Naselje
  • Površina 166.00 m2
  • Novogradnja +
  • God. izgradnje 2025
  • Kat 0
  • Br.spavaćih soba 2
  • Terasa / loggia +
  • Udaljenost od mora 10 m
  • Pogled na more +
  • Parking -
  • Garaža +
  • Grijanje klimatizirano
  • Komunalije gradski vodovod, gradska kanalizacija, telefon
  • Dozvole vlasnički list, građevinska dozvola
  • Energetski certifikat A+
  • Cijena po m2 0,00 €
  • Ukupna cijena 1.346.625,00 €