Opis nekretnine

PRIVLAKA – Novogradnja! Trosoban stan s pogledom na more, samo 100 m od plaže


Na prodaju je moderan trosoban stan (S5) u kvalitetnoj novogradnji s ukupno 10 stambenih jedinica. Smješten u mirnom i atraktivnom dijelu Privlake, svega 100 metara od mora, stan predstavlja idealnu priliku za obiteljski odmor, cjelogodišnji boravak ili investiciju u turistički najam.

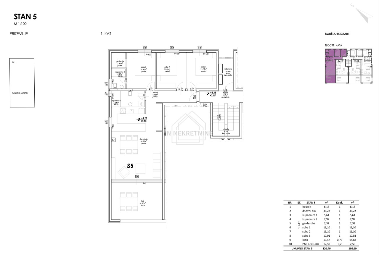
Stan se nalazi na prvom katu i ima neto korisnu površinu od 105,60 m², a sastoji se od:

  • hodnika – 6,18 m²
  • prostranog dnevnog boravka s kuhinjom i blagovaonicom – 38,22 m²

  • dvije kupaonice – 5,61 m² i 2,97 m²

  • tri spavaće sobe – 11,10 m², 11,10 m² i 10,92 m²

  • garderobe – 2,32 m²

  • natkrivene lođe – 19,57 m²

  • vanjskog parkirnog mjesta – 12,50 m²

Ukupna površina sa svim pripadcima iznosi 120,49 m².

 

KUPAC NE PLAĆA POREZ NA PROMET NEKRETNINA – prodavatelj je pravna osoba!

 


Za više informacija i dogovor oko razgledavanja, slobodno nas kontaktirajte.

  • Šifra objekta A610
  • Tip Apartman na moru
  • Mjesto Privlaka
  • Naselje
  • Površina 105.00 m2
  • Novogradnja +
  • God. izgradnje 2025
  • Kat 1
  • Br.spavaćih soba 3
  • Terasa / loggia +
  • Udaljenost od mora 100 m
  • Pogled na more +
  • Parking +
  • Garaža -
  • Grijanje klimatizirano
  • Komunalije gradski vodovod, telefon
  • Dozvole vlasnički list, građevinska dozvola
  • Energetski certifikat -
  • Cijena po m2 0,00 €
  • Ukupna cijena 369.600,00 €