Opis nekretnine

Dvosoban stan u prizemlju s vrtom i pogledom na more – 106,22 m²


Na prodaju je atraktivan stan u prizemlju moderne novogradnje s ukupno šest stambenih jedinica, smješten u mjestu Sv. Petar na Moru, u općini Sv. Filip i Jakov. Zgrada je trenutno u fazi izgradnje, a nalazi se na mirnoj lokaciji, svega 150 metara od mora i plaže – samo 5 minuta laganog hoda.

Stan S2 nalazi se u prizemlju i uključuje privatni vrt te nudi pogled na more i Pašmanski kanal. Ova nekretnina idealna je za sve koji traže udoban prostor za odmor ili život, uz savršenu ravnotežu mira, prirode i blizine većih urbanih središta poput Zadra i Biograda na Moru.

Netto površina stana sa svim pripadcima iznosi 106,22 m².

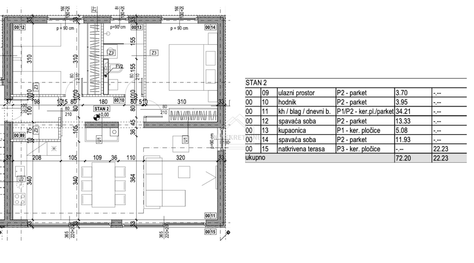
Tlocrt stana uključuje:

  • ulazni prostor

  • hodnik

  • kuhinju s blagovaonicom i dnevnim boravkom u open-space konceptu

  • dvije spavaće sobe

  • kupaonicu

  • natkrivenu terasu s izlazom u vrt i pogledom na more

Stanu pripada jedno vanjsko parkirno mjesto, kao i vlastiti vrt, idealan za opuštanje ili obiteljska druženja.

Posebnosti:

  • prizemlje s privatnim vrtom

  • odlična lokacija blizu mora

  • novogradnja u mirnom okruženju

  • pogled na more

  • blizina Zadra i Biograda

Ova nekretnina savršena je za osobnu upotrebu tijekom ljetnih mjeseci, ali i kao odlična investicija za turistički najam.

 


Za dodatne informacije i razgledavanje slobodno nas kontaktirajte.

  • Šifra objekta A612
  • Tip Apartman na moru
  • Mjesto Sv. Filip i Jakov
  • Naselje Sv. Petar na Moru
  • Površina 106.00 m2
  • Novogradnja +
  • God. izgradnje 2025
  • Kat 0
  • Br.spavaćih soba 2
  • Terasa / loggia +
  • Udaljenost od mora 150 m
  • Pogled na more +
  • Parking +
  • Garaža -
  • Grijanje klimatizirano
  • Komunalije gradski vodovod, telefon
  • Dozvole vlasnički list, građevinska dozvola
  • Energetski certifikat -
  • Cijena po m2 0,00 €
  • Ukupna cijena 329.282,00 €