Opis nekretnine

Ekskluzivan dvosoban penthouse s krovnom terasom u luksuznoj novogradnji – Sukošan


Na mirnoj lokaciji u Sukošanu prodaje se moderan i luksuzan dvosoban penthouse smješten na drugom katu manje stambene zgrade. Zgrada je u visokoj fazi izgradnje. Ova visoko kvalitetna novogradnja sastoji se od svega tri stambene jedinice – svaka smještena na vlastitoj etaži, što pruža dodatnu privatnost i udobnost stanovanja. U zgradi je ugrađen moderni KONE lift koji dodatno povećava komfor i funkcionalnost. Ova nekretnina savršena je kao luksuzni dom ili investicija za najam. Lokacija pruža mir, ali i blizinu svih sadržaja potrebnih za svakodnevni život.

Stan A3 nalazi se na drugom katu i ističe se iznimnom kvalitetom gradnje i vrhunskim materijalima. Stan ima i vlastitu privatnu krovnu terasu s koje se pruža prekrasan pogled na more. Kvaliteta gradnje i pažnja prema detaljima izdvajaju ovu nekretninu kao pravu rijetkost na tržištu.

Zgrada je u završnoj fazi izgradnje te se završetak svih radova i useljenje očekuje uskoro.

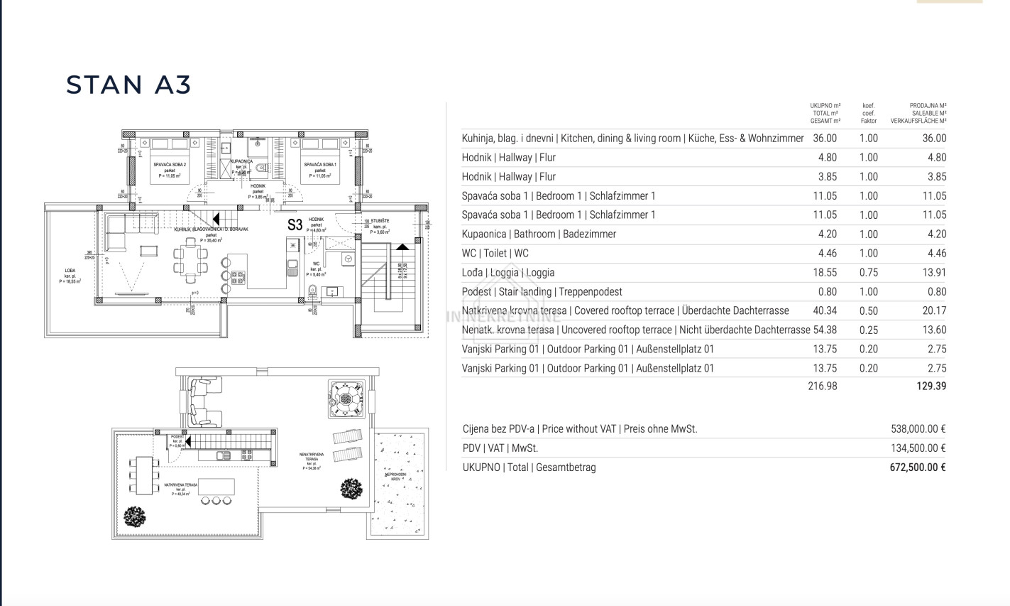
Stan se sastoji od:

  • Prostranog open-space dnevnog boravka s kuhinjom i blagovaonicom – 36,00 m²

  • Dvije spavaće sobe – svaka po 11,05 m²

  • Kupaonice – 4,20 m²

  • Dodatnog WC-a – 4,46 m²

  • Dva hodnika – 4,80 m² i 3,85 m²

  • Lođe – 18,55 m² 

  • Natkrivene krovne terase - 40,34 m2

  • Nenatkrivene krovne terase - 54,38 m2

  • Dva vanjska parkirna mjesta – svaki po 13,75 m² 

Ukupna prodajna površina stana: 129,39 m²


Ukupna cijena s PDV-om: 672.500,00 €

Kupac ne plaća porez na promet nekretninama jer je prodavatelj pravna osoba!

 


Za dodatne informacije ili dogovor razgledavanja slobodno nas kontaktirajte.

  • Šifra objekta A635
  • Tip Apartman na moru
  • Mjesto Sukošan
  • Naselje
  • Površina 129.00 m2
  • Novogradnja +
  • God. izgradnje 2025
  • Kat 2
  • Br.spavaćih soba 2
  • Terasa / loggia -
  • Udaljenost od mora 400
  • Pogled na more +
  • Parking +
  • Garaža -
  • Grijanje klimatizirano
  • Komunalije gradski vodovod, telefon
  • Dozvole vlasnički list, građevinska dozvola, uporabna dozvola
  • Energetski certifikat -
  • Cijena po m2 0,00 €
  • Ukupna cijena 672.500,00 €