Opis nekretnine

Prodaje se stan u prizemlju s vrtom – odlična prilika, Zadar (Plovanija)


Na prodaju je stan u prizemlju novogradnje smještene u mirnom i poželjnom dijelu Zadra – Plovaniji. Nekretnina se ističe vlastitim vrtom od cca 40 m², u kojem je predviđena terasa, te s dva privatna parkirna mjesta.

Raspored prostorija (57,40 m² unutarnjeg prostora):

  • hodnik

  • spavaća soba

  • kupaonica

  • kuhinja s blagovaonicom i dnevnim boravkom

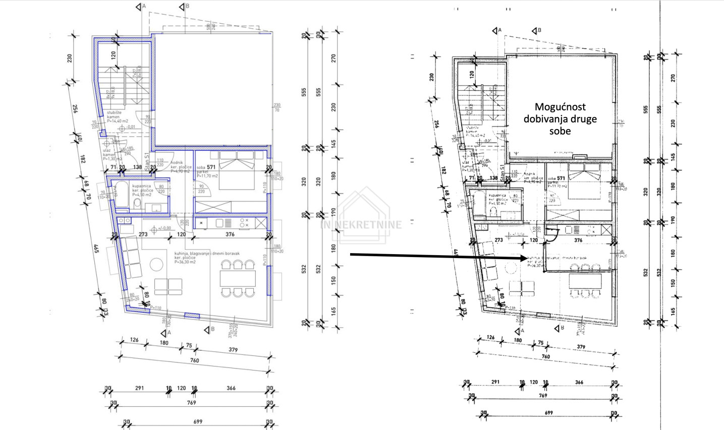
Prema tlocrtu, prostor je moguće jednostavnom pregradom dodatno prilagoditi i dobiti još jednu spavaću sobu, što ovaj stan čini još funkcionalnijim i pogodnim i za obitelji.

Ukupna neto korisna površina s pripacima (vrt i parkirališta) iznosi 66,40 m².

Oprema i kvaliteta gradnje:

  • useljenje predviđeno do lipnja 2026.

  • podno električno grijanje u kupaonici

  • jedan klima uređaj

  • betonska gradnja s fasadom izoliranom 10 cm kamenom vunom

  • PVC stolarija s električnim roletama i komarnicima

  • protuprovalna i protupožarna ulazna vrata

  • podne obloge: pločice

  • dimnjak (mogućnost postavljanja kamina ili peći)

 

Zašto baš ovaj stan?

  • mogućnost dodatne spavaće sobe

  • vlastiti vrt s terasom

  • dva parkirna mjesta uključena u cijenu

  • mirna i tražena lokacija

  • odlična prometna povezanost i blizina svih potrebnih sadržaja

Ovo je izvrsna prilika za ugodan obiteljski život ili kao investicija za turistički najam.

  • Šifra objekta S490
  • Tip Stan
  • Mjesto Zadar
  • Naselje Plovanija
  • Površina 66.00 m2
  • Novogradnja -
  • God. izgradnje 2025
  • Kat 0
  • Br.spavaćih soba 1
  • Terasa / loggia +
  • Parking +
  • Garaža -
  • Grijanje klimatizirano
  • Komunalije gradski vodovod, gradska kanalizacija, telefon
  • Dozvole vlasnički list, građevinska dozvola
  • Energetski certifikat -
  • Cijena po m2 0,00 €
  • Ukupna cijena 199.000,00 €