Opis nekretnine

Luksuzni penthouse s privatnom krovnom terasom i vlastitim liftom


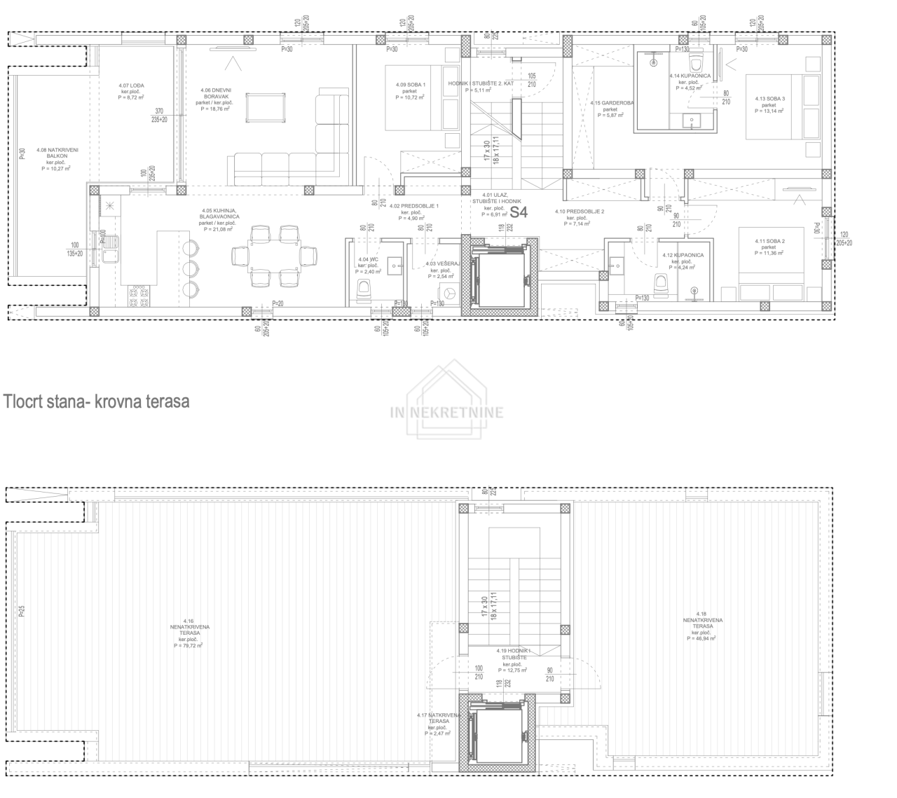
Na prodaju je luksuzni penthouse udaljen 150 metara od mora. Ovaj elegantan penthouse odiše modernim dizajnom i komforom te pruža savršenu ravnotežu između luksuza i funkcionalnosti.

Zgrada je trenutno u fazi izgradnje, a planirani završetak radova predviđen je za drugu polovicu 2026. godine

Prostrani dnevni boravak s kuhinjom i blagovaonicom u open-space konceptu stvara osjećaj prozračnosti i povezanosti, 

Stan raspolaže s tri spavaće sobe, od kojih dvije imaju vlastitu kupaonicu, dok glavna spavaća soba dodatno nudi prostranu garderobu – idealno za ljubitelje udobnosti i elegancije.
Tu su i poseban WChodnik te vešeraj, što dodatno doprinosi praktičnosti svakodnevnog života.

Posebnost ove nekretnine čini privatna krovna terasa, do koje se dolazi izravno iz stana vlastitim liftom. Ovdje možete uživati u potpunoj privatnosti, s prekrasnim pogledom i mogućnošću uređenja prostora po vlastitoj želji – idealno za opuštanje ili druženje na otvorenom.

Stan uključuje i dva vanjska parkirna mjesta.

Ukupna brutto površina sa svim pripadnicima iznosi 302,25 m², dok netto prodajna površina iznosi  176,66 m².

Kožino je jedno od najpoželjnijih mjesta u blizini Zadra, poznato po mirnom okruženju, blizini mora i luksuznim novogradnjama. Udaljen je svega nekoliko minuta vožnje od Zadra i svih potrebnih sadržaja.

 


Za više informacija ili razgledavanje, slobodno nas kontaktirajte.

  • Šifra objekta A648
  • Tip Apartman na moru
  • Mjesto Kožino
  • Naselje
  • Površina 177.00 m2
  • Novogradnja -
  • God. izgradnje 2026
  • Kat 0
  • Br.spavaćih soba 3
  • Terasa / loggia +
  • Udaljenost od mora 150
  • Pogled na more +
  • Parking +
  • Garaža -
  • Grijanje
  • Komunalije gradski vodovod
  • Dozvole vlasnički list, građevinska dozvola
  • Energetski certifikat -
  • Cijena po m2 0,00 €
  • Ukupna cijena 1.044.300,00 €