Opis nekretnine

Apartman u prizemlju 20 m od mora s terasom i vrtom - Zaton pokraj Zadra


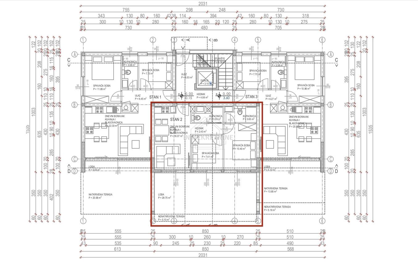
Na prodaju je atraktivan stan na vrhunskoj lokaciji u mjestu Zaton, svega 20 metara od mora, u drugom redu do mora. Nekretnina se nalazi u modernoj i kvalitetno građenoj zgradi s ukupno 8 stambenih jedinica. Stan se nalazi na izuzetno traženoj lokaciji, u neposrednoj blizini mora, što predstavlja veliku prednost tijekom ljetnih mjeseci i sezone kupanja. Blizina grada Zadra dodatno povećava vrijednost ove nekretnine.

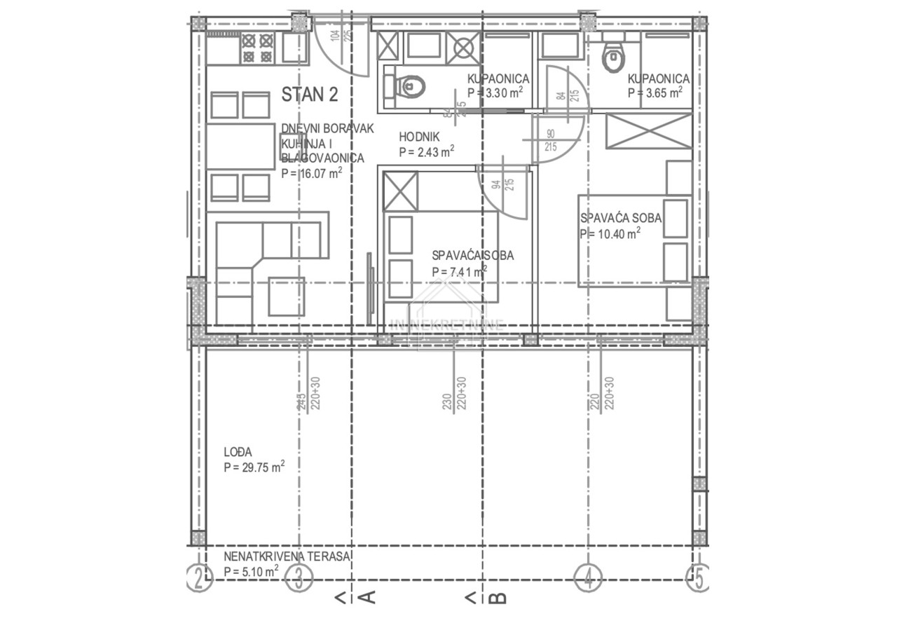
Stan ima unutarnju površinu od 43,26 m², no zahvaljujući izvrsnom rasporedu prostor je maksimalno funkcionalan i ugodan za boravak. Idealan je za stanovanje, odmor ili kao investicija za turistički najam.

Ukupna korisna vrijednost površine stana sa svim pripadcima iznosi 77,72 m².

 

Raspored prostorija:

  • kuhinja i dnevni boravak (open space) – 16,07 m²

  • hodnik – 2,43 m²

  • spavaća soba – 7,41 m²

  • spavaća soba – 10,40 m² s vlastitom kupaonicom (3,65 m²)

  • kupaonica – 3,30 m²

Posebnu vrijednost ovoj nekretnini daju vanjski prostori:

  • prostrana lođa od 29,75 m², idealna za boravak veći dio godine

  • nenatkrivena terasa od 5,10 m²

  • vrt 25 m2

Stanu pripadaju i dva vanjska parkirna mjesta.

 

Visoka kvaliteta gradnje i opreme:

  • aluminijska stolarija Schüco s elektro roletama i žaluzinama na staklenim stijenama

  • dizalo Schindler

  • podno grijanje putem dizalice topline

  • klima uređaji Mitsubishi

  • prvoklasna keramika velikog formata

  • kvalitetan parket

* KUPAC NE PLAĆA POREZ NA PROMET NEKRETNINA jer je prodavatelj pravna osoba!

  • Šifra objekta A667
  • Tip Apartman na moru
  • Mjesto Nin
  • Naselje Zaton
  • Površina 78.00 m2
  • Novogradnja +
  • God. izgradnje 2025
  • Kat 0
  • Br.spavaćih soba 2
  • Terasa / loggia +
  • Udaljenost od mora 20 m
  • Pogled na more -
  • Parking +
  • Garaža -
  • Grijanje klimatizirano
  • Komunalije gradski vodovod, telefon
  • Dozvole vlasnički list, građevinska dozvola
  • Energetski certifikat -
  • Cijena po m2 4.000,00 €
  • Ukupna cijena 310.880,00 €