Opis nekretnine

Dvosoban apartman u prizemlju, 20 m od mora - Zaton pokraj Zadra


Na prodaju je atraktivan stan na vrhunskoj lokaciji u mjestu Zaton, svega 20 metara od mora, u drugom redu do mora. Nekretnina se nalazi u modernoj i kvalitetno građenoj zgradi s ukupno 8 stambenih jedinica. Stan se nalazi na izuzetno traženoj lokaciji, u neposrednoj blizini mora, što predstavlja veliku prednost tijekom ljetnih mjeseci i sezone kupanja. Blizina grada Zadra dodatno povećava vrijednost ove nekretnine.

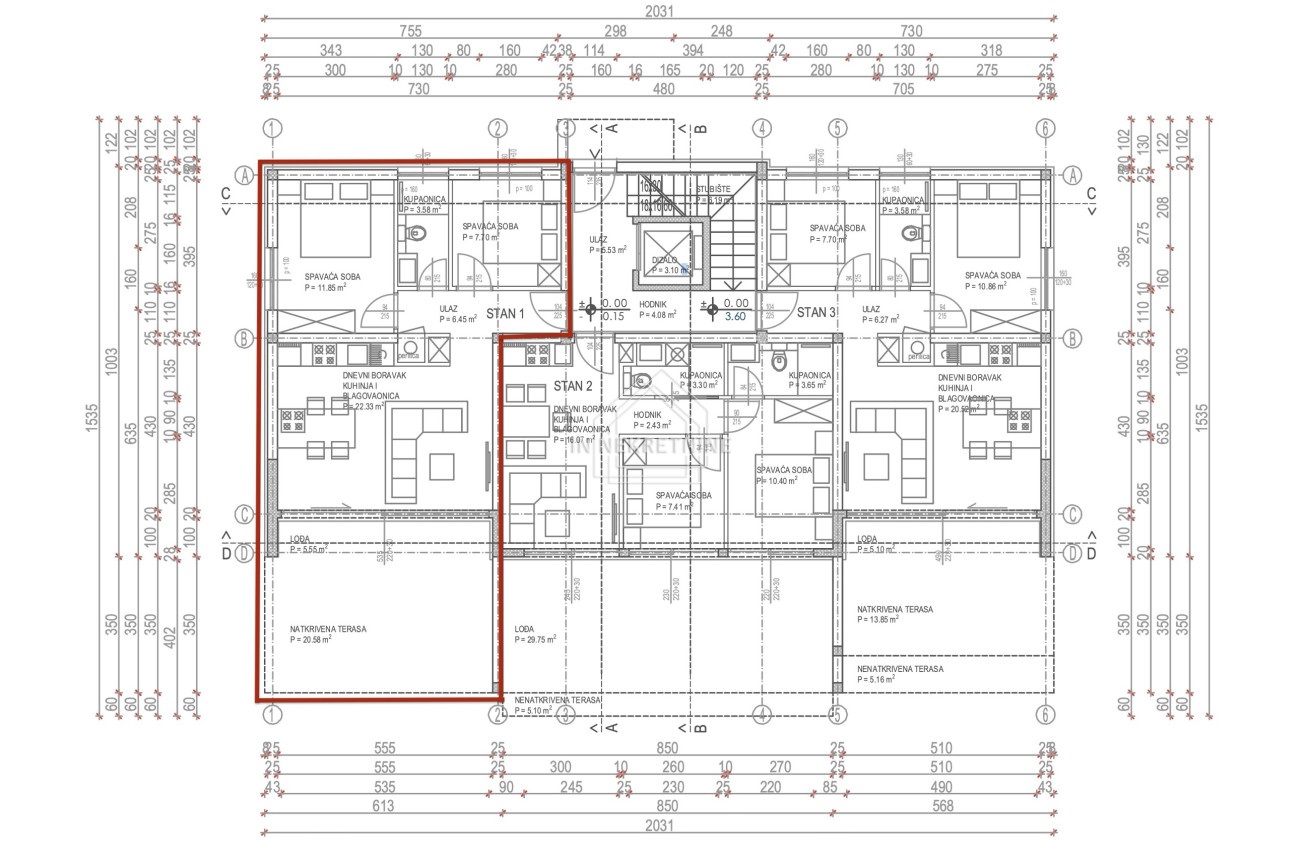
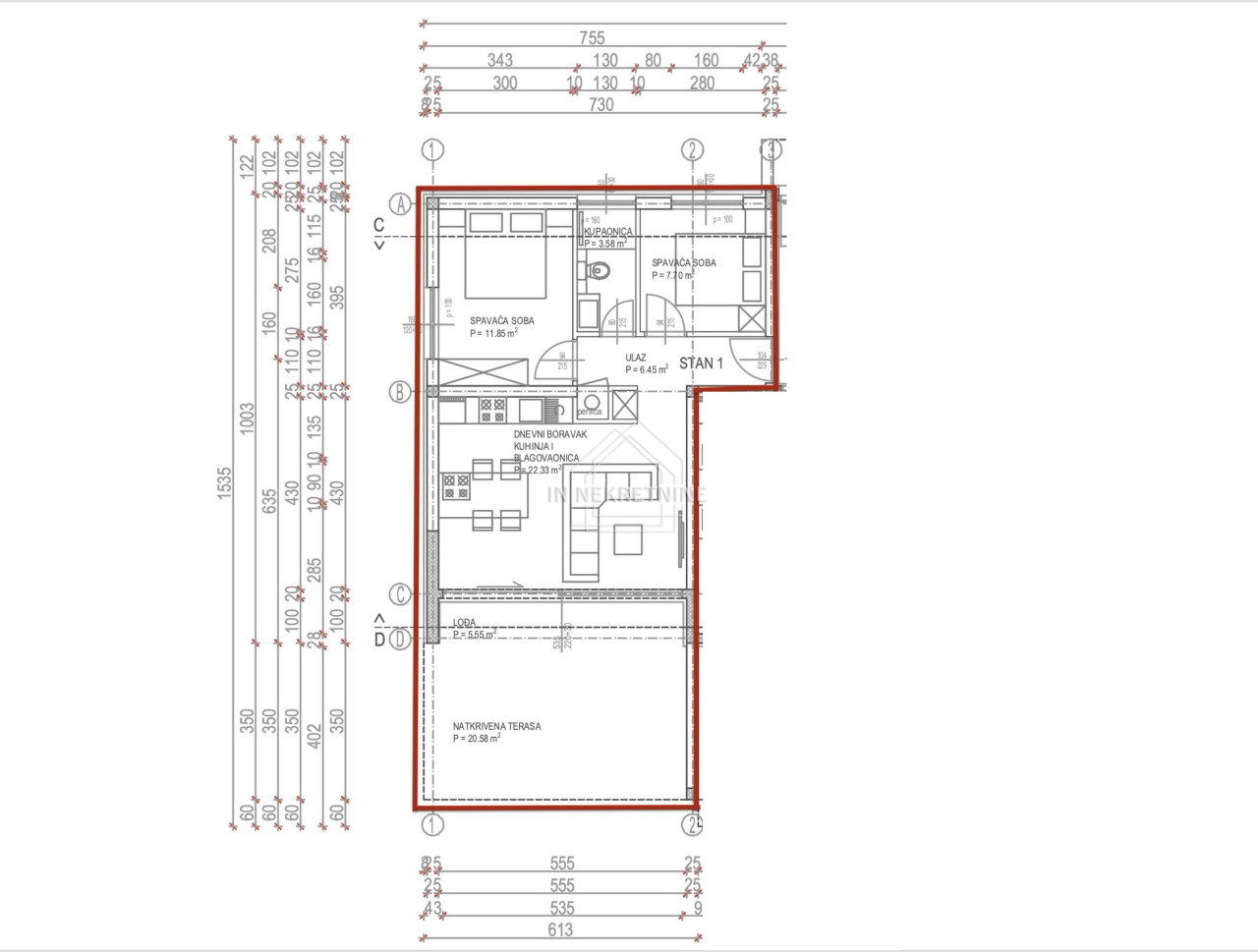
Stan ima unutarnju površinu od 51,91 m², no zahvaljujući izvrsnom rasporedu prostor je maksimalno funkcionalan i ugodan za boravak. Idealan je za stanovanje, odmor ili kao investicija za turistički najam.

Ukupna korisna vrijednost površine stana sa svim pripadcima iznosi 76,41 m².

 

Raspored prostorija:

  • kuhinja i dnevni boravak (open space) – 22,33 m²

  • ulaz – 6,45m²

  • spavaća soba – 11,85 m²

  • spavaća soba – 7,70 m²

  • kupaonica – 3,58 m²

Posebnu vrijednost ovoj nekretnini daju vanjski prostori:

  • lođa od 5,55 m², idealna za boravak veći dio godine

  • natkrivena terasa od 20,58 m²

  • vrt 29 m2

Stanu pripadaju i dva vanjska parkirna mjesta.

 

Visoka kvaliteta gradnje i opreme:

  • aluminijska stolarija Schüco s elektro roletama i žaluzinama na staklenim stijenama

  • dizalo Schindler

  • podno grijanje putem dizalice topline

  • klima uređaji Mitsubishi

  • prvoklasna keramika velikog formata

  • kvalitetan parket

* KUPAC NE PLAĆA POREZ NA PROMET NEKRETNINA jer je prodavatelj pravna osoba!

  • Šifra objekta A668
  • Tip Apartman na moru
  • Mjesto Nin
  • Naselje Zaton
  • Površina 77.00 m2
  • Novogradnja +
  • God. izgradnje 2025
  • Kat 0
  • Br.spavaćih soba 2
  • Terasa / loggia +
  • Udaljenost od mora 20 m
  • Pogled na more -
  • Parking +
  • Garaža -
  • Grijanje klimatizirano
  • Komunalije gradski vodovod, telefon
  • Dozvole vlasnički list, građevinska dozvola, uporabna dozvola
  • Energetski certifikat -
  • Cijena po m2 0,00 €
  • Ukupna cijena 360.000,00 €