Opis nekretnine

Ekskluzivna novogradnja, prvi red do mora - Otok Ugljan, Preko


U prodaji je ekskluzivna novogradnja smještena u prvom redu do mora u mjestu Preko na otoku Ugljanu, na jednoj od najatraktivnijih lokacija u Zadarskom arhipelagu. Riječ je o manjoj stambenoj zgradi s ukupno četiri luksuzne i komforne stambene jedinice, koja svojim položajem, kvalitetom gradnje i modernim dizajnom predstavlja rijetkost na tržištu nekretnina.

Zgrada se nalazi na vrhunskoj lokaciji, svega oko 150 metara od hotela Hilton, te u neposrednoj blizini restorana, trgovina  i svih sadržaja potrebnih za ugodan boravak, kako tijekom turističke sezone, tako i kroz cijelu godinu. Preko je razvijeno, uređeno i mirno dalmatinsko mjesto koje pruža idealan balans između privatnosti, prirode i blizine grada Zadra, do kojeg se dolazi trajektom za svega 25 minuta.

U ponudi su sljedeći stanovi:

STAN S1:
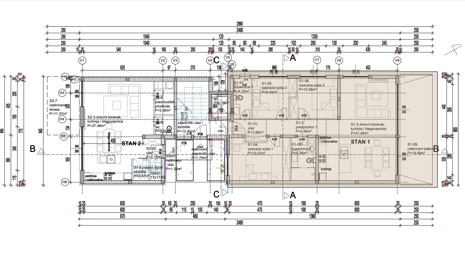
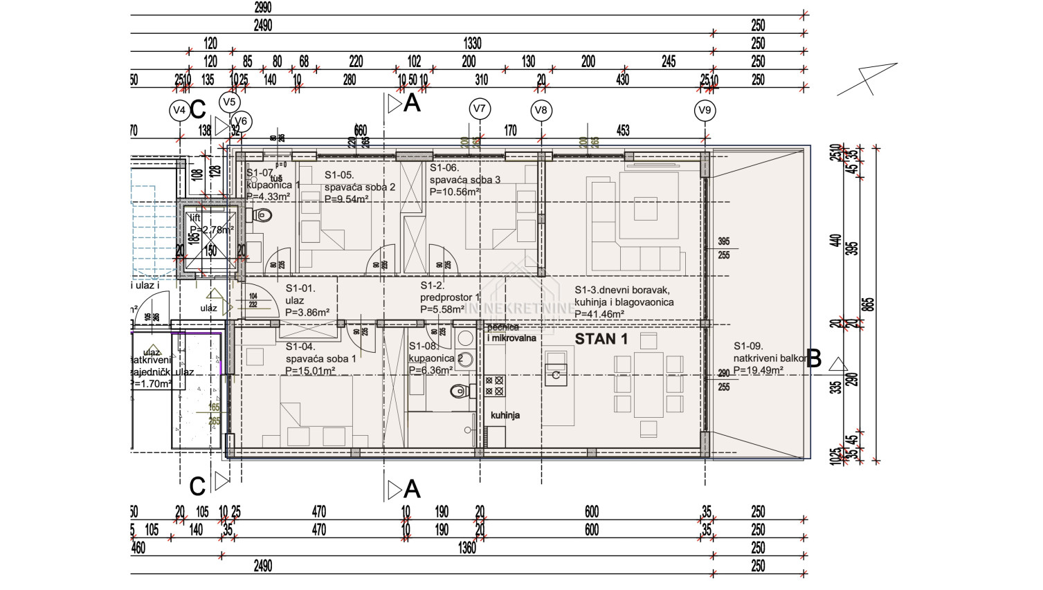
Stan S1 nalazi se u visokom prizemlju zgrade, u prvom redu do mora, s prekrasnim otvorenim pogledom na more. Sastoji se od ulaznog prostora i predprostora, prostranog dnevnog boravka s kuhinjom i blagovaonicom otvorenog koncepta, tri spavaće sobe, dvije kupaonice te natkrivenog balkona. Stanu dodatno pripada vrt i jedno parkirno mjesto oznake PM1. Ukupna obračunska površina (NKP) iznosi 114,26 m², dok ukupna bruto površina iznosi 179,28 m².
CIJENA: 742.600,00 EUR

STAN S2 – REZERVIRANO!
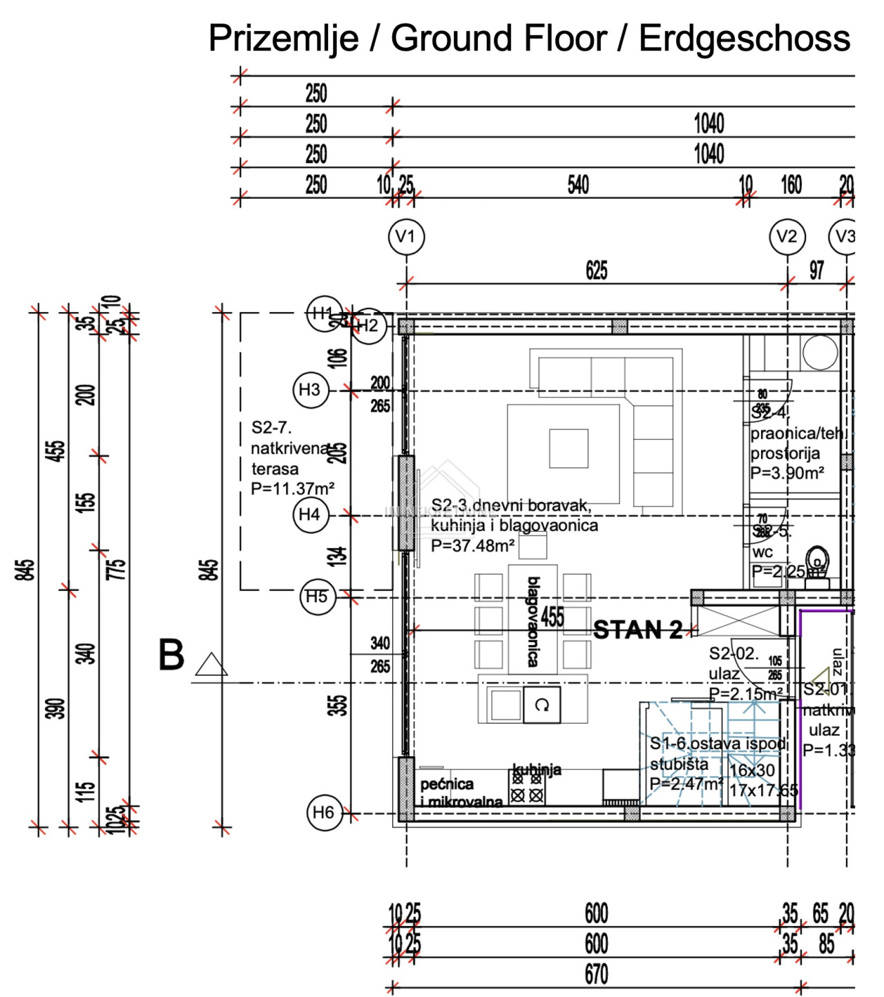
Stan S2 nalazi se u prizemlju zgrade u prvom redu do mora te se prostire na dvije etaže – prizemlje i prvi kat – s vlastitim zasebnim ulazom. U prizemlju se nalazi natkriveni ulaz, ulazni prostor, prostrani dnevni boravak s kuhinjom i blagovaonicom, praonica odnosno tehnička prostorija, WC, ostava ispod stubišta, stubište, natkrivena terasa, vrt i privatni bazen. Na katu su smještene dvije spavaće sobe, dvije kupaonice i natkriveni balkon. Stanu pripada jedno parkirno mjesto oznake PM2. Ukupna obračunska površina (NKP) iznosi 130,16 m², dok ukupna bruto površina iznosi 286,37 m².

STAN S3 – PRODANO!

STAN S4 – PENTHOUSE:
Stan S4, ekskluzivni penthouse, nalazi se na drugom katu zgrade i nudi spektakularan otvoreni pogled na more. Posebnost ovog stana je prostrana krovna terasa koja pripada isključivo ovom stanu, a na koju je moguć pristup direktnim stubištem iz stana ili privatnim liftom koji vodi sve do krova. Stan se sastoji od ulaznog prostora, hodnika i stubišta, prostranog dnevnog boravka s kuhinjom i blagovaonicom otvorenog koncepta, tri spavaće sobe, dvije garderobe, praonice i dvije kupaonice. Dodatni luksuz čini privatna sauna, dok se na krovnoj terasi nalazi infinity bazen, sunčalište te kombinacija natkrivenih i nenatkrivenih prostora za potpuni užitak. Stanu pripada garaža od 32 m2. Ukupna obračunska površina (NKP) iznosi 254,22 m², dok ukupna bruto površina iznosi 387,33 m².
CIJENA: 1.779.500,00 EUR

 

Projektirana prema najvišim standardima moderne gradnje i opremljena vrhunskim materijalima, zgrada nudi savršen spoj luksuza, funkcionalnosti i obilja prirodnog svjetla, uz naglasak na spektakularan pogled na more.

Planirani završetak radova i useljenje predviđeni su do ljeta 2027. godine.

 

 

  • Šifra objekta A679
  • Tip Apartman na moru
  • Mjesto Otok Ugljan
  • Naselje Preko
  • Površina 115.00 m2
  • Novogradnja +
  • God. izgradnje 2026
  • Kat 98
  • Br.spavaćih soba 3
  • Terasa / loggia +
  • Udaljenost od mora 5 m
  • Pogled na more +
  • Parking +
  • Garaža -
  • Grijanje klimatizirano
  • Komunalije gradski vodovod, telefon
  • Dozvole vlasnički list, građevinska dozvola
  • Energetski certifikat -
  • Cijena po m2 0,00 €
  • Ukupna cijena 742.600,00 €