Opis nekretnine

Ekskluzivan dvosoban apartman u PRVOM REDU DO MORA – moderna novogradnja u Privlaci!


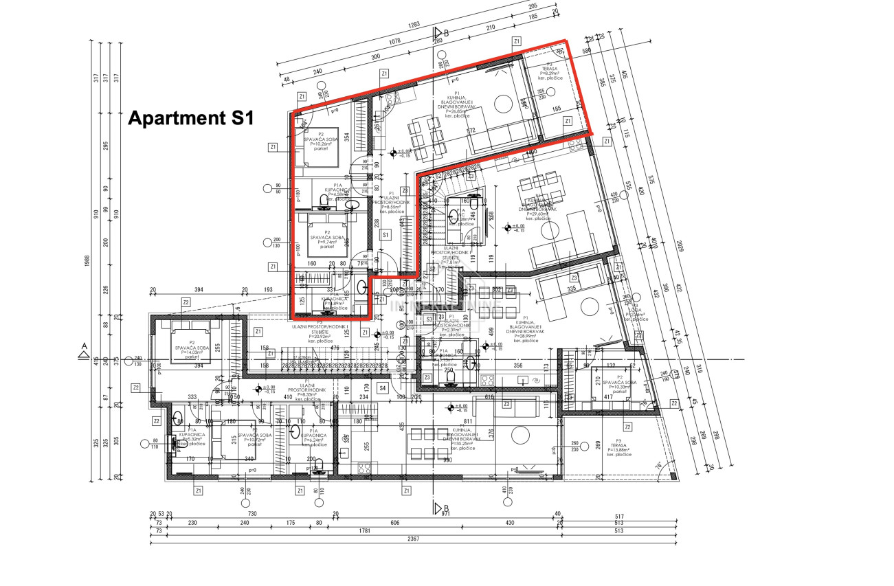
Na prodaju je ekskluzivan trosoban apartman smješten u prvom redu do mora, u modernoj luksuznoj novogradnji sa ukupno devet stambenih jedinica. Iz stana se pruža predivan i neometan pogled na more.

Zgrada je još u fazi izgradnje, a završetak svih radova i mogućnost useljenja se očekuje do ljeta 2026. godine. Gradi se po visokim standardima gradnje te će biti postavljeno:

  • podno grijanje u svim prostorijama,
  • klima uređaj u svim prostorijama osim kupaonicama, 
  • električne black - out zavjese,
  • velike staklene stijene s komarnicima. 

Korisnici stana imaju pravo na korištenje zajedničke krovne terase od 250 m2 koja je zajednički prostor za sve stanare u zgradi.

Apartman se sastoji od:

  • hodnika, kuhinje, blagovaonice i dnevnog boravka (open space), kupaonice, dvije spavaće sobe (jedna od njih ima vlastitu kupaonicu) i lođe.

 Apartmanu pripada i jedno vanjsko parkirno mjesto.

* KUPAC NE PLAĆA POREZ NA PROMET NEKRETNINA jer je prodavatelj pravna osoba!

  • Šifra objekta A680
  • Tip Apartman na moru
  • Mjesto Privlaka
  • Naselje
  • Površina 86.00 m2
  • Novogradnja +
  • God. izgradnje 2026
  • Kat 0
  • Br.spavaćih soba 3
  • Terasa / loggia +
  • Udaljenost od mora 5 m
  • Pogled na more +
  • Parking +
  • Garaža -
  • Grijanje klimatizirano
  • Komunalije gradski vodovod, telefon
  • Dozvole vlasnički list, građevinska dozvola, uporabna dozvola
  • Energetski certifikat A+
  • Cijena po m2 0,00 €
  • Ukupna cijena 450.000,00 €