Opis nekretnine

PRIVLAKA – Novogradnja! Dvosoban stan s pogledom na more, samo 100 m od plaže, privatna krovna terasa!


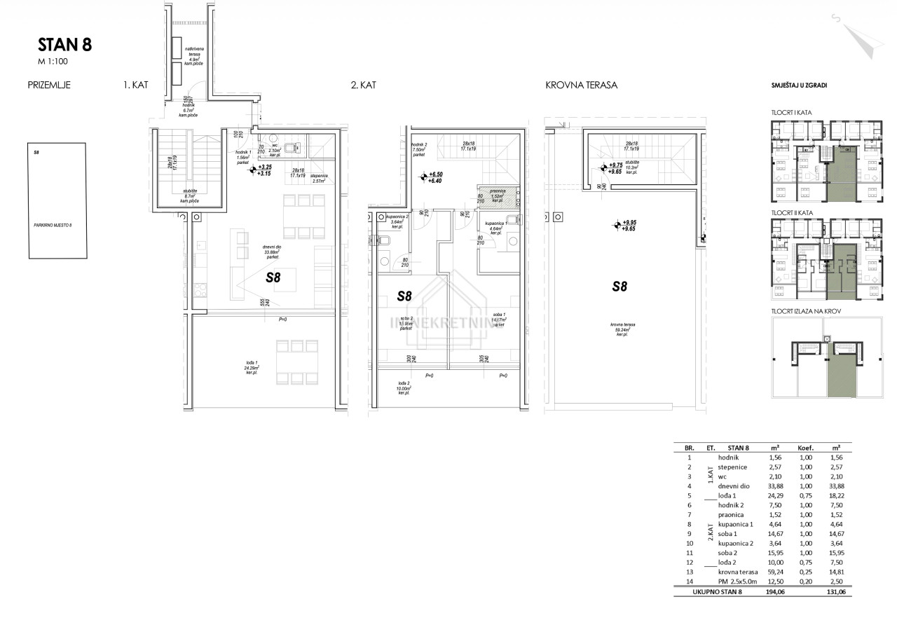
Na prodaju je moderan trosoban stan (S8) u visokokvalitetnoj novogradnji s ukupno 10 stambenih jedinica. Smješten u mirnom i atraktivnom dijelu Privlake, svega 100 metara od mora, stan predstavlja idealnu priliku za obiteljski odmor, cjelogodišnji boravak ili investiciju u turistički najam.

Stan se prostire na tri etaže i ima neto korisnu površinu od 131,06 m², a sastoji se od:

Na prvom katu:

  • hodnika – 1,56 m²
  • prostranog dnevnog boravka s kuhinjom i blagovaonicom – 33,88 m²

  • wc-a - 2,10 m²

  • natkrivene lođe – 24,29 m²

Na drugom katu:

  • dvije kupaonice – 3,64 m² i 4,64 m²

  • dvije spavaće sobe – 15,95 m² i 14,67 m²

  • praonice – 1,52 m²

  • natkrivene lođe – 10 m²

Stanu pripada privatna krovna terasa površine 59,24 m² i vanjskog parkirnog mjesta od 12,50 m².

Ukupna površina sa svim pripadcima iznosi 194,06 m².

 

KUPAC NE PLAĆA POREZ NA PROMET NEKRETNINA – prodavatelj je pravna osoba!

 


Za više informacija i dogovor oko razgledavanja, slobodno nas kontaktirajte.

  • Šifra objekta A684
  • Tip Apartman na moru
  • Mjesto Privlaka
  • Naselje
  • Površina 131.00 m2
  • Novogradnja +
  • God. izgradnje 2026
  • Kat 1
  • Br.spavaćih soba 2
  • Terasa / loggia +
  • Udaljenost od mora 50 m
  • Pogled na more +
  • Parking +
  • Garaža -
  • Grijanje klimatizirano
  • Komunalije gradski vodovod, telefon
  • Dozvole vlasnički list, građevinska dozvola
  • Energetski certifikat -
  • Cijena po m2 0,00 €
  • Ukupna cijena 458.710,00 €