Opis nekretnine

U ponudi su tri kuće u nizu. Nalaze se na odličnoj lokaciji u neposrednoj blizini mora u mjestu Zaton pokraj Zadra, točnije predio Šepurine. Smještene su na mirnoj lokaciji, te nude sve što je potrebno za neometan odmor i ljetovanje. 

U ponudi su sljedeće jedinice:

OBJEKT A:

Kuća 2 površine 116,02 m2 - prostire se na dvije etaže. Na donjoj etaži se nalaze dnevni boravak i kuhinja iz kojih se izlazi na lođu, ostava i wc, a na gornjoj etaži se nalaze tri spavaće sobe (jedna od njih je master soba sa vlastitom kupaonicom i izlazom na lođu), hodnik, kupaonica i lođa. Detaljne kvadrature i tlocrt možete vidjeti na priloženim fotografijama (Objekt A, Kuća 2). Kuća se prodaje kompletno namještena i opremljena. Tražena cijena je 400.000,00 EUR.

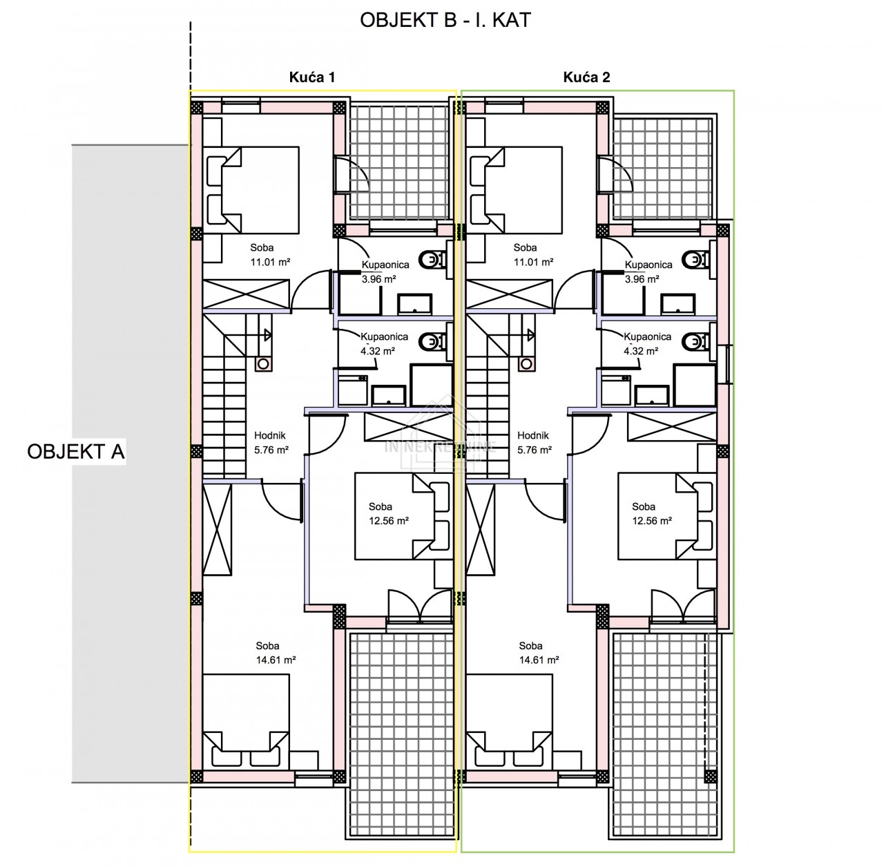
OBJEKT B:

Kuća 1 površine 118,34 m2 - prostire se na dvije etaže. Na donjoj etaži se nalaze dnevni boravak i kuhinja iz kojih se izlazi na lođu, ostava i wc, a na gornjoj etaži se nalaze tri spavaće sobe (jedna od njih je master soba sa vlastitom kupaonicom i izlazom na lođu), hodnik, kupaonica i lođa. Detaljne kvadrature i tlocrt možete vidjeti na priloženim fotografijama (Objekt B, Kuća 1). Tražena cijena je 400.000,00 EUR.

Za više informacija stojimo Vam na raspolaganju!

UKOLIKO STE OVU NEKRETNINU NEGDJE PRONAŠLI OGLAŠENU PO NIŽOJ CIJENI, ISTA VRIJEDI I KOD NAS!

 

  • Šifra objekta K343
  • Tip Kuća
  • Mjesto Zaton
  • Naselje Šepurine
  • Površina 118.00 m2
  • Površina zemljišta 0.00 m2
  • Novogradnja +
  • God. izgradnje 2021
  • Br. etaža 2
  • Br.spavaćih soba 3
  • Terasa / loggia +
  • Udaljenost od mora 10 m
  • Pogled na more +
  • Parking +
  • Garaža -
  • Grijanje klimatizirano
  • Komunalije gradski vodovod, telefon
  • Dozvole vlasnički list, građevinska dozvola, uporabna dozvola
  • Energetski certifikat -
  • Ukupna cijena 400.000,00 €