Opis nekretnine

PRIVLAKA - Ekskluzivna novogradnja, odlična lokacija, 70 m od mora i plaže!


Ekskluzivna novogradnja u Privlaci. U ponudi je šest stambenih jedinica. Nalaze se na odličnoj lokaciji, udaljenost od mora i prekrasne plaže je 70 metara. S prvog i drugog kata se pruža panoramski pogled na more. U izgradnji i opremanju se korisite isključivo najkvalitetniji materijali od renomiranih proizvođača.  Više informacija na upit.

U ponudi su sljedeći stanovi:

PRIZEMLJE:

S1 - 190,41 m2 Sastoji se od kuhinje, blagovaonice, dnevnog boravka, dvije kupaonice, wc-a, tri spavaće sobe, ostave, terase i vanjskog bazena. Stanu pripadaju dva vanjska parkirna  mjesta. CIJENA - 435.000,00 EURA.

S2 - 190,41 m2 Sastoji se od kuhinje, blagovaonice, dnevnog boravka, dvije kupaonice, wc-a, tri spavaće sobe, ostave, terase i vanjskog bazena . Stanu pripadaju dva vanjska parkirna  mjesta. CIJENA - 435.000,00 EURA.

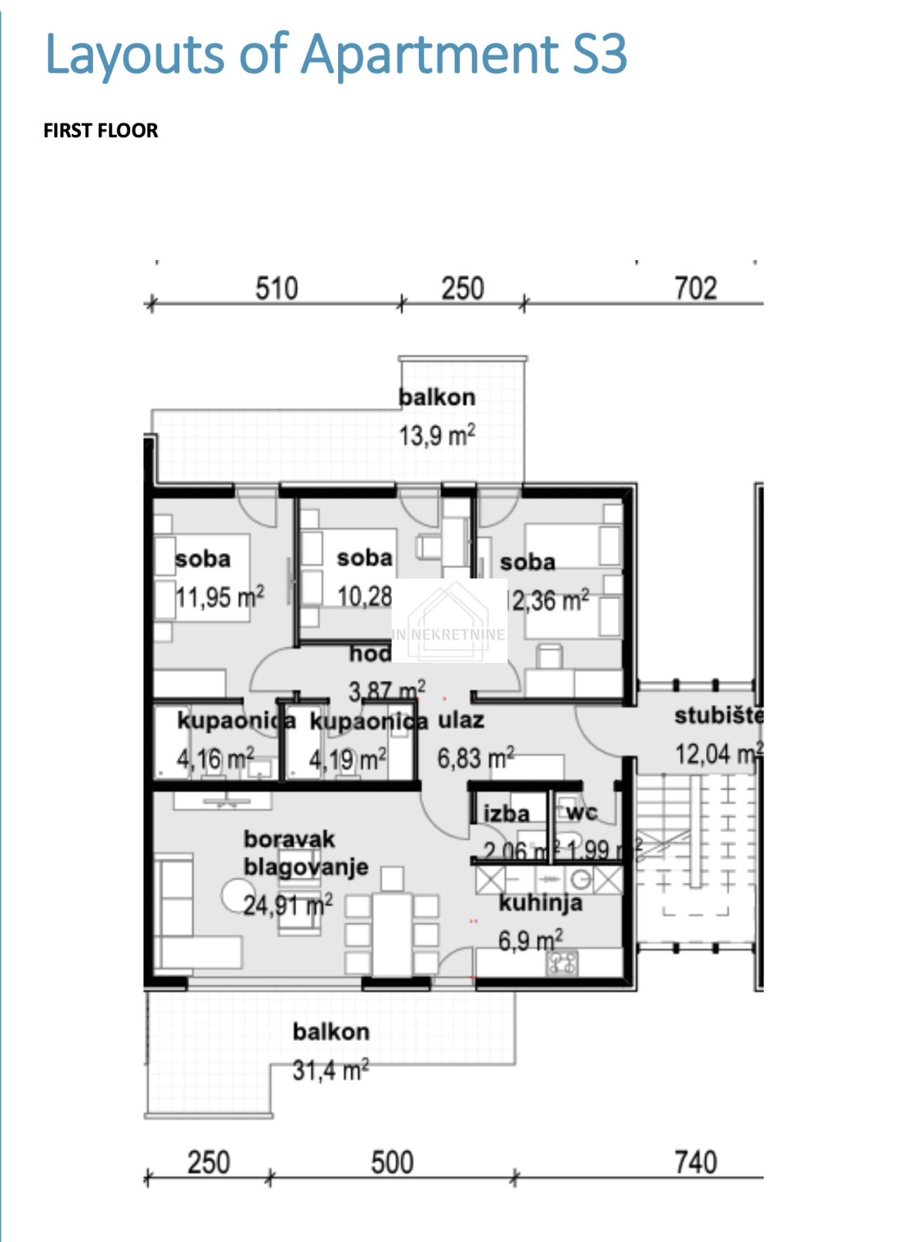
1. KAT: 

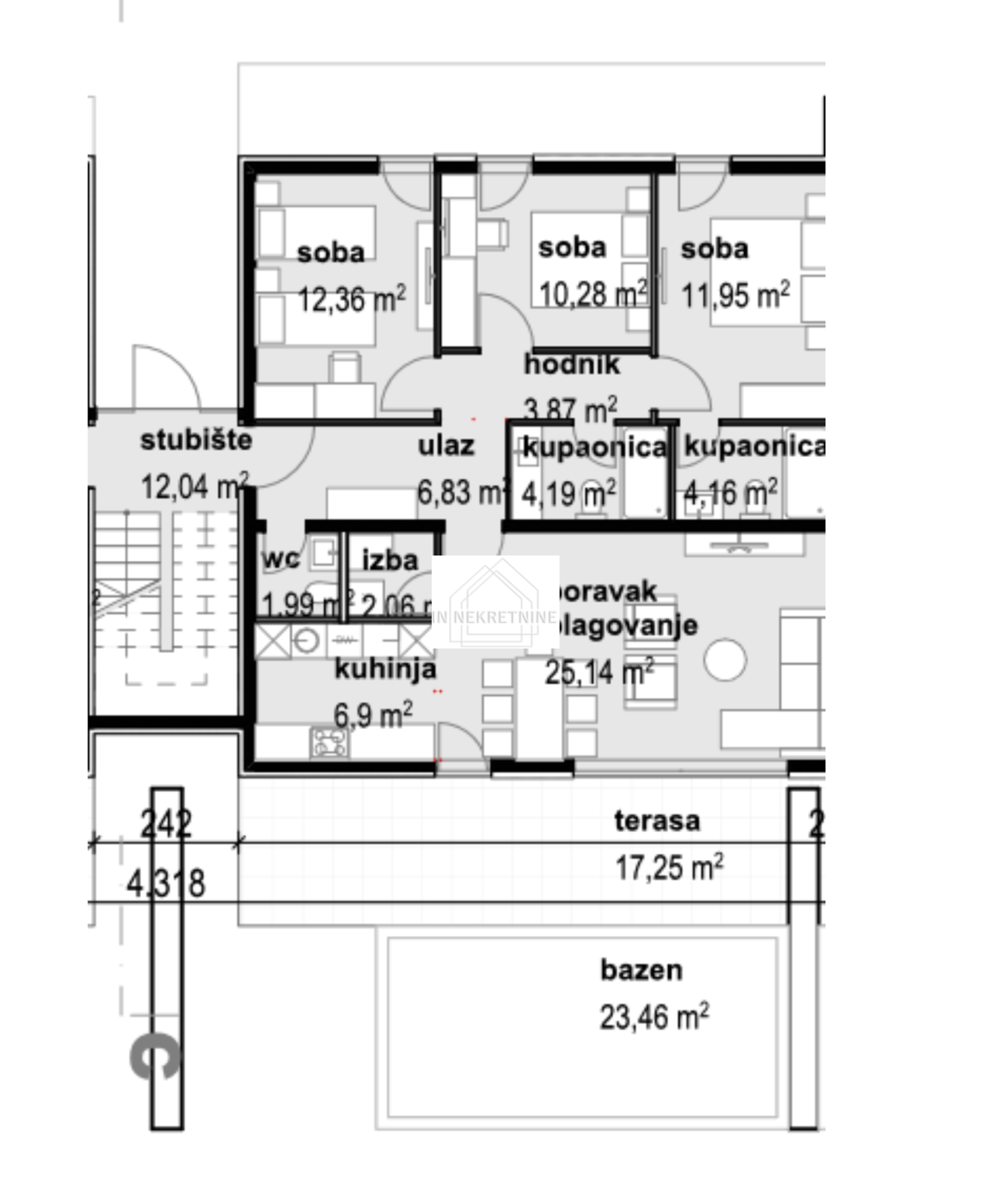
S3 - 147,28 m2  Sastoji se od kuhinje, blagovaonice, dnevnog boravka, dvije kupaonice, wc-a, tri spavaće sobe, ostave i dvije terase. Stanu pripadaju dva vanjska parkirna mjesta. CIJENA - 374.250,00 EURA. 

2. KAT:

S5 - 206,35 m2 Sastoji se od kuhinje, blagovaonice, dnevnog boravka, dvije kupaonice, wc-a, tri spavaće sobe, ostave, dvije terase i krovne terase. Stanu pripadaju dva vanjska parkirna mjesta. CIJENA - 527.000,00 EURA. 

 

UKOLIKO STE OVU NEKRETNINU NEGDJE PRONAŠLI OGLAŠENU PO NIŽOJ CIJENI, ISTA CIJENA VRIJEDI I KOD NAS!

  • Šifra objekta A547
  • Tip Apartman na moru
  • Mjesto Privlaka
  • Naselje
  • Površina 147.00 m2
  • Novogradnja -
  • God. izgradnje 2024
  • Kat 1
  • Br.spavaćih soba 3
  • Terasa / loggia +
  • Udaljenost od mora 70 metara
  • Pogled na more +
  • Parking +
  • Garaža -
  • Grijanje klimatizirano
  • Komunalije gradski vodovod
  • Dozvole vlasnički list, građevinska dozvola, uporabna dozvola
  • Energetski certifikat -
  • Cijena po m2 0,00 €
  • Ukupna cijena 374.250,00 €